ZONA PRIVADA   |   ENGLISH

   Edificio de centrífugas espesadoras
   EDAR de la Gavia (Madrid, España)


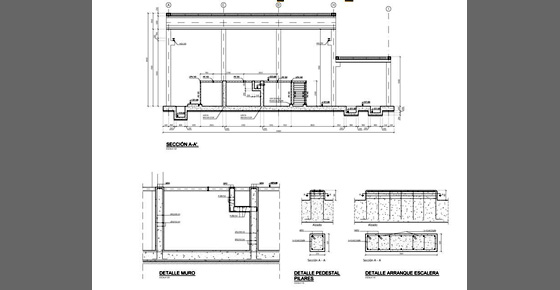
Edificio de centrifugas espesadoras, EDAR de la Gavia, Madrid, Spain 1 Edificio de centrifugas espesadoras, EDAR de la Gavia, Madrid, Spain 2 Edificio de centrifugas espesadoras, EDAR de la Gavia, Madrid, Spain 3
  • Edificio de centrifugas espesadoras, EDAR de la Gavia, Madrid, Spain 4
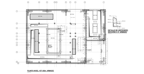
  • Edificio de centrifugas espesadoras, EDAR de la Gavia, Madrid, Spain 5
  • Edificio de centrifugas espesadoras, EDAR de la Gavia, Madrid, Spain 6