ZONA PRIVADA   |   ENGLISH

   Alshaab Gymnasium (Baghdad, Irak)


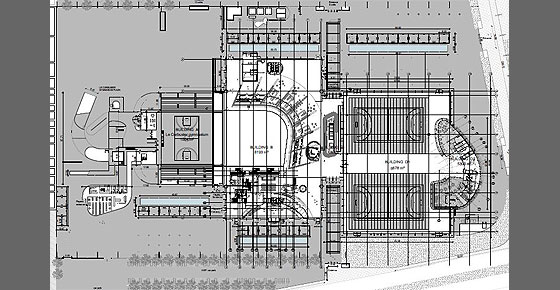
Alshaab Gymnasium, Baghdad, Irak (Le Corbusier Extension) 1 Alshaab Gymnasium, Baghdad, Irak (Le Corbusier Extension) 2 Alshaab Gymnasium, Baghdad, Irak (Le Corbusier Extension) 3
  • Alshaab Gymnasium, Baghdad, Irak (Le Corbusier Extension) 4
  • Alshaab Gymnasium, Baghdad, Irak (Le Corbusier Extension) 5
  • Alshaab Gymnasium, Baghdad, Irak (Le Corbusier Extension) 6