ZONA PRIVADA   |   ENGLISH

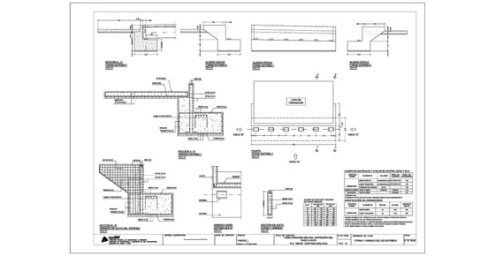
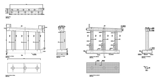
   Dos puentes de carretera sobre la
   plataforma de FF.CC. (Córdoba, España)


Dos puentes de carretera sobre la plataforma de FF.CC. Cordoba-Malaga 1 Dos puentes de carretera sobre la plataforma de FF.CC. Cordoba-Malaga 2
  • Dos puentes de carretera sobre la plataforma de FF.CC. Cordoba-Malaga 3
  • Dos puentes de carretera sobre la plataforma de FF.CC. Cordoba-Malaga 4