ZONA PRIVADA   |   ENGLISH

   Acceso al puerto de Almería (España)


Acceso al puerto de Almeria 1 Acceso al puerto de Almeria 2
  • Acceso al puerto de Almeria 3
  • Acceso al puerto de Almeria 4

 


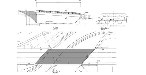
Proyecto para el acceso al puerto de Almería, incluyendo un viaducto mixto, dos puentes de carretera y dos pasos inferiores.