ZONA PRIVADA   |   ENGLISH

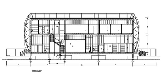
   Fábrica de Laboratorio Trombolabs
   Madrid (España)


Fabrica de Laboratorio Trombolabs 1 Fabrica de Laboratorio Trombolabs 2 Fabrica de Laboratorio Trombolabs 3 Fabrica de Laboratorio Trombolabs 4
  • Fabrica de Laboratorio Trombolabs 5
  • Fabrica de Laboratorio Trombolabs 6
  • Fabrica de Laboratorio Trombolabs 7
  • Fabrica de Laboratorio Trombolabs 8